Önen Holding Genel Müdürlük Binası – Alataş Architecture
Alataş Architecture and Consulting’in Dardanel Yönetim Binası, World Architecture Festival etkinliği ile paralel düzenlenen INSIDE’da (The World Festival of Interiors) Creative Re-Use kategorisinde 1. oldu.
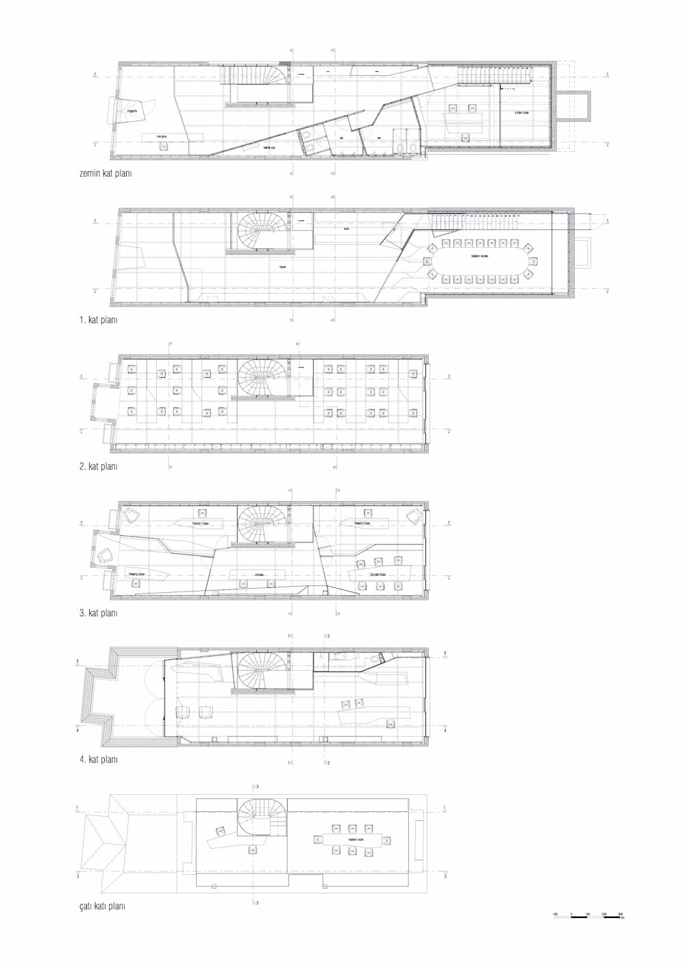
Dardanel Yönetim Binası Hakkında
19. yüzyılda Tarabya’da yol yalısı olarak inşa edilen bina, 80′li yıllarda orijinalinden oldukça uzaklaşarak tarihi değeri gözetilmeden gerçekleştirilen restorasyon çalışmaları sırasında betonarme olarak yeni baştan konut maksatlı olarak inşa edilmiş. Yapısal birçok problemi de içerisinde barındıran yapı, Dardanel tarafından satın alındıktan sonra iç mekanları ofis maksatlı kullanılmak üzere Alataş Architecture and Consulting tarafından yeniden tasarlandı. Binanın ön cephesi, niteliksiz restorasyon çalışmaları sırasında orijinaline ait olmayan ve strüktürün estetiğini bozan “yapıştırılmış” süslemelerden aslına uygun şekilde sadeleştirilirken, 21. Yüzyılın çağdaş mimarlık çözümleri (teknolojik imkanları) kullanılarak bu tarihi yapının şimdi ile geleceğin çalışma ve yaşamsal ihtiyaçlarına karşılık verebilmesi sağlandı.
Önen Holding Genel Müdürlük Binası







































